DŮM NAD MĚSTEM




RODINNÝ DŮM VE ZLÍNĚ

Autoři:
Jiří Vokřál, Michaela Vokřálová

Projekt:
2025-

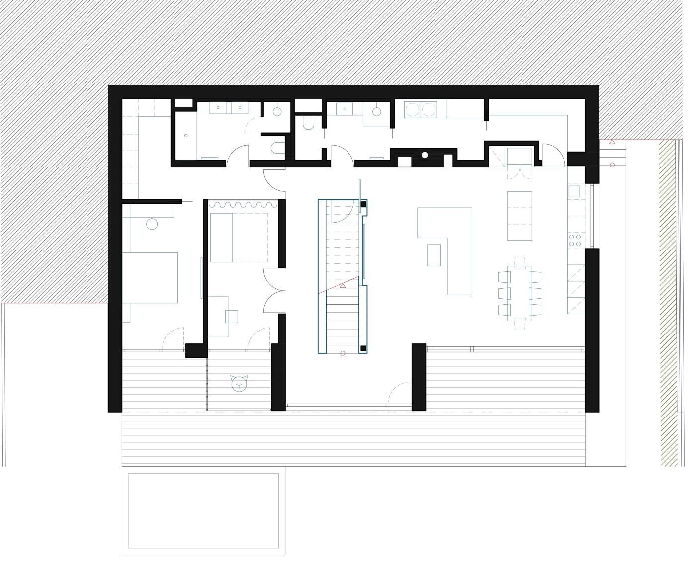
Dům je navržen jako tvarově jednoduchá hmota usazená ve svahu s převýšením plného podlaží, tedy z ulice je vnímán jako jednopodlažní a ze zahrady jako dvoupodlažní. Výrazným motivem je plastičnost fasád, především jižní, výrazně prosklená fasáda je prolomena třemi zapuštěnými lodžiemi, což vytváří na domě výraznou stínohru. Severní fasádě zase dominuje plastický přesah střechy nad vstupní částí odlehčenou celoprosklenou stěnou vstupní haly. Prostorový koncept domu je založen na hlavním motivu přímého schodiště, které vytváří osu napříč domem od vstupní části k výhledům do krajiny. Jedinečný výhled lze zažít už při vstupu do centrální schodišťové chodby v horním podlaží, kde lze schodiště obejít až k velkému fixně zasklenému oknu tvořícímu obraz krajiny přes celou stěnu. U okna je navrženo posezení pro chvíle relaxace s knihou. Počátek schodiště je navíc zdůrazněn velkým střešním světlíkem. Schodiště je po obou stranách lemováno knihovnami a tvoří s nimi centrální interiérový prvek hlavního obytného prostoru v přízemí, který lze dokola obejít.
I při sestupu do 1np na schodiště navazuje celoprosklená stěna rámující výhled do zahrady. Schodiště je umístěno v centru dispozice a je také prvkem oddělujícím soukromé pokoje od společenské zóny ve spodním podlaží a technických prostor v horním podlaží. Zároveň je orientace na jih a k výhledům využita na maximum a jsou tímto směrem orientovány všechny obytné místnosti.


 Zpět 


COPYRIGHT 2026 JVARCHITEKT. ALL RIGHTS RESERVED.